木屑料仓图纸怎么看的出来,揭秘高效仓储奥秘
你有没有想过,那些看起来平平无奇的木屑料仓图纸,其实里面藏着大大的学问呢?今天,就让我带你一起揭开这些图纸的神秘面纱,看看它们是如何透露出木屑料仓的秘密的。
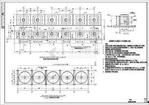
一、图纸的“门面”:标题与比例

首先,你得学会从图纸的标题和比例尺开始。一张标准的木屑料仓图纸,标题通常会明确标注“木屑料仓设计图”或者“木屑料仓结构图”。比例尺则告诉你图纸上的每一毫米代表实际中的多少米,这对于理解图纸至关重要。
想象如果你看到比例尺是1:100,那就意味着图纸上的每一厘米代表实际中的1米。这样,你就可以轻松地在图纸上找到木屑料仓的实际尺寸了。
二、图纸的“骨架”:平面图与立面图

接下来,我们要关注的是图纸的平面图和立面图。平面图就像一张地图,展示了木屑料仓的俯视图,让你一目了然地看到它的整体布局。而立面图则像是木屑料仓的“侧面照”,它展示了木屑料仓的立面结构,包括墙壁、屋顶和门等。
在平面图上,你会看到各种线条和符号,它们代表着不同的结构元素。比如,粗实线可能代表承重墙,而细实线可能代表非承重墙。符号旁边的小箭头或者文字说明,则是告诉你这些线条和符号的具体含义。
三、图纸的“细节”:尺寸标注与材料说明

图纸上的尺寸标注是理解木屑料仓尺寸的关键。通常,尺寸标注会以毫米为单位,并且会标注在相应的线条旁边。如果你发现某个尺寸标注得特别详细,那可能是因为这个部分对整个结构非常重要。
此外,材料说明也是不可忽视的细节。在图纸的角落或者特定的区域,你会看到各种材料的名称和规格。比如,“C20混凝土”或者“Q235钢材”,这些都是建造木屑料仓时需要用到的材料。
四、图纸的“灵魂”:连接与支撑
木屑料仓的图纸中,连接与支撑结构是它的灵魂。这些结构包括梁、柱、板等,它们确保了木屑料仓的稳定性和安全性。在图纸中,你会看到这些结构是如何通过线条和符号相互连接的。
比如,梁和柱之间的连接可能会用特殊的符号表示,而支撑结构则可能用虚线或者斜线来表示。这些细节都是建造过程中必须严格遵守的。
五、图纸的“安全网”:规范与标准
任何一张图纸都离不开规范与标准。在木屑料仓的图纸中,你会看到各种规范和标准的引用。这些规范和标准确保了木屑料仓的设计和建造符合安全要求。
比如,你可能会在图纸中看到“GB 50009-2012”这样的编号,这是中国建筑行业的国家标准。这些标准不仅规定了材料的要求,还规定了设计、施工和验收的流程。
通过以上这些角度,你就可以对木屑料仓图纸有一个全面的理解。当然,这只是一个大致的指南,实际操作中还需要结合具体的项目要求和现场情况进行深入分析。不过,掌握了这些基本技巧,相信你已经迈出了成为木屑料仓图纸解读高手的第一步了!